
6502 Military Drive Abilene, TX 79605
1.8 Acres Lot
UPDATED:
Key Details
Property Type Commercial
Sub Type Warehouse
Listing Status Active
Purchase Type For Sale
Subdivision Broadview West Add
MLS Listing ID 21072937
Total Fin. Sqft 8000
Year Built 2006
Annual Tax Amount $15,448
Lot Size 1.800 Acres
Acres 1.8
Property Sub-Type Warehouse
Property Description
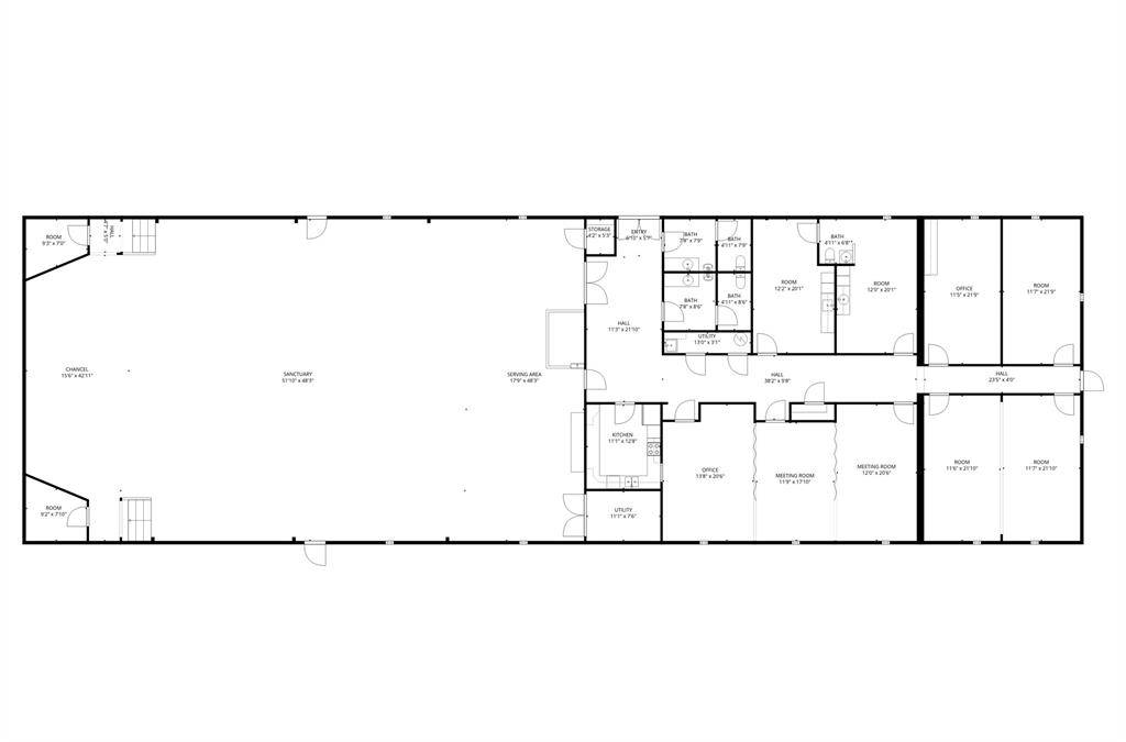
Originally constructed in 2006 with additions in 2010 and 2018, the structure is a mix of steel and wood framing with a durable metal panel exterior and roof system. The foundation includes both reinforced concrete slab and pier-and-beam construction, supporting a range of interior layouts.
The spacious 4,200 SF sanctuary features tall vaulted ceilings, a raised platform, and acoustical ceiling grid with a mix of recessed and fluorescent lighting. Additional interior features include a foyer, one large fellowship hall (divisible into three classrooms), three dedicated classrooms, two nursery rooms with a shared restroom, a full kitchen, men's and women's restrooms, and multiple storage-mechanical rooms. Flooring consists of commercial-grade carpet and vinyl, with textured and painted concrete block or gypsum walls throughout.
Site improvements include an asphalt paved parking lot with 49 striped spaces (4 ADA), concrete sidewalks, minimal landscaping, and existing monument signage. The property is not located in a flood zone, offering added peace of mind and reduced risk.
This is a unique chance to acquire a well-maintained, flexible-use facility in a growing commercial corridor of Abilene.
Location
State TX
County Taylor
Zoning GC
Direction Hwy 20 west to Arnold Rd, south on Arnold to Military, take a right
Interior
Heating Central, Electric
Cooling Central Air, Electric
Flooring Carpet, Luxury Vinyl Plank
Heat Source Central, Electric
Exterior
Utilities Available All Weather Road, Electricity Available, MUD Sewer, MUD Water
Roof Type Metal
Garage No
Building
Lot Description Few Trees, Level, Lrg. Backyard Grass
Foundation Pillar/Post/Pier, Slab
Structure Type Metal Siding
Others
Acceptable Financing Cash, Conventional, FHA, VA Loan
Listing Terms Cash, Conventional, FHA, VA Loan
Virtual Tour https://www.propertypanorama.com/instaview/ntreis/21072937







